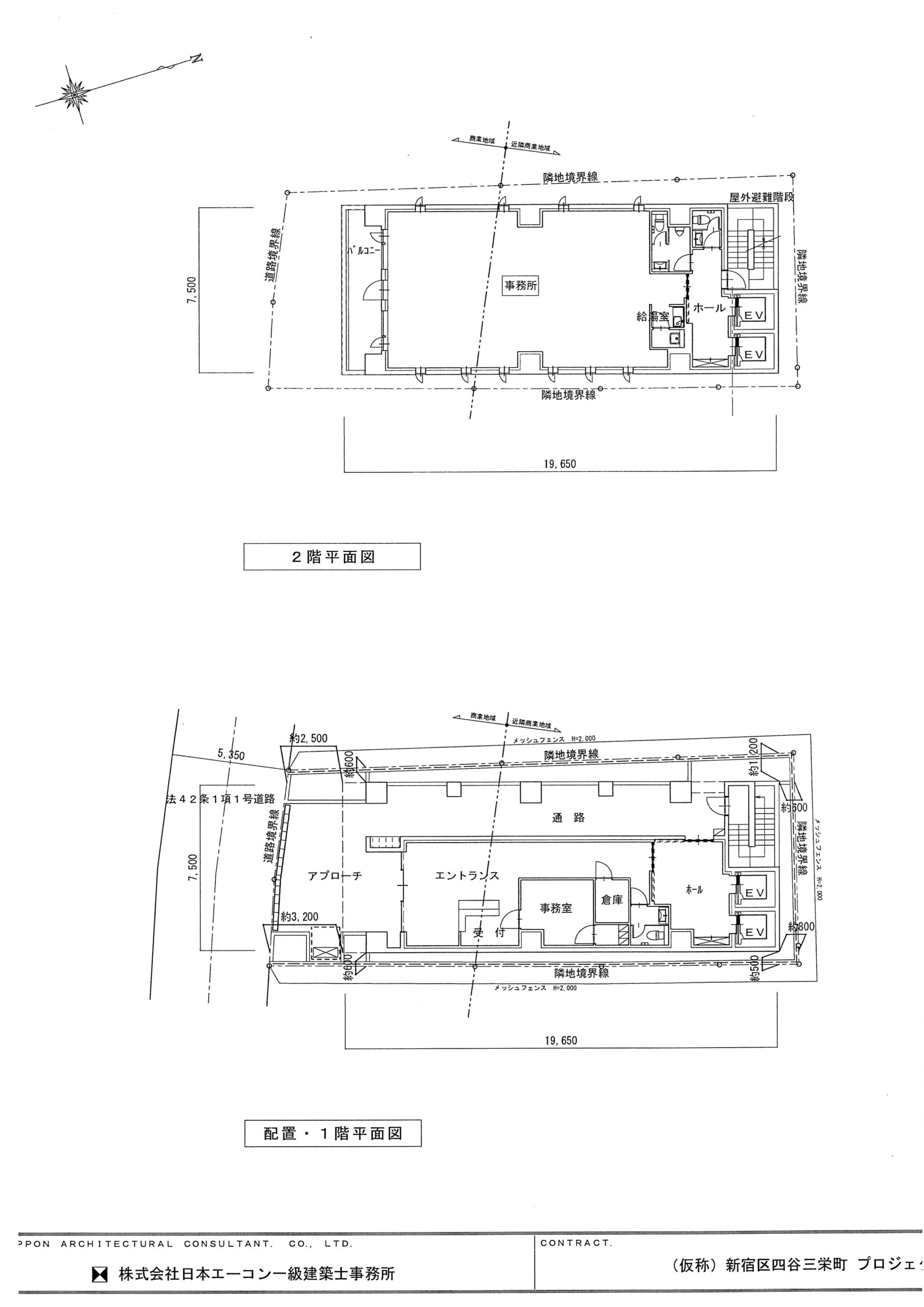
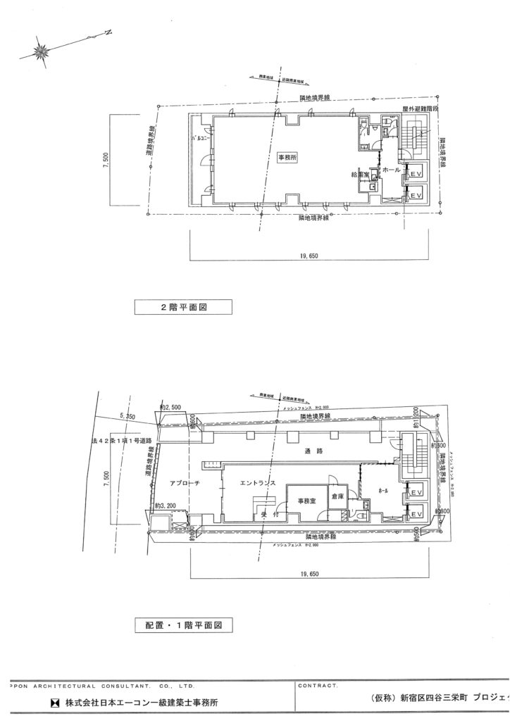
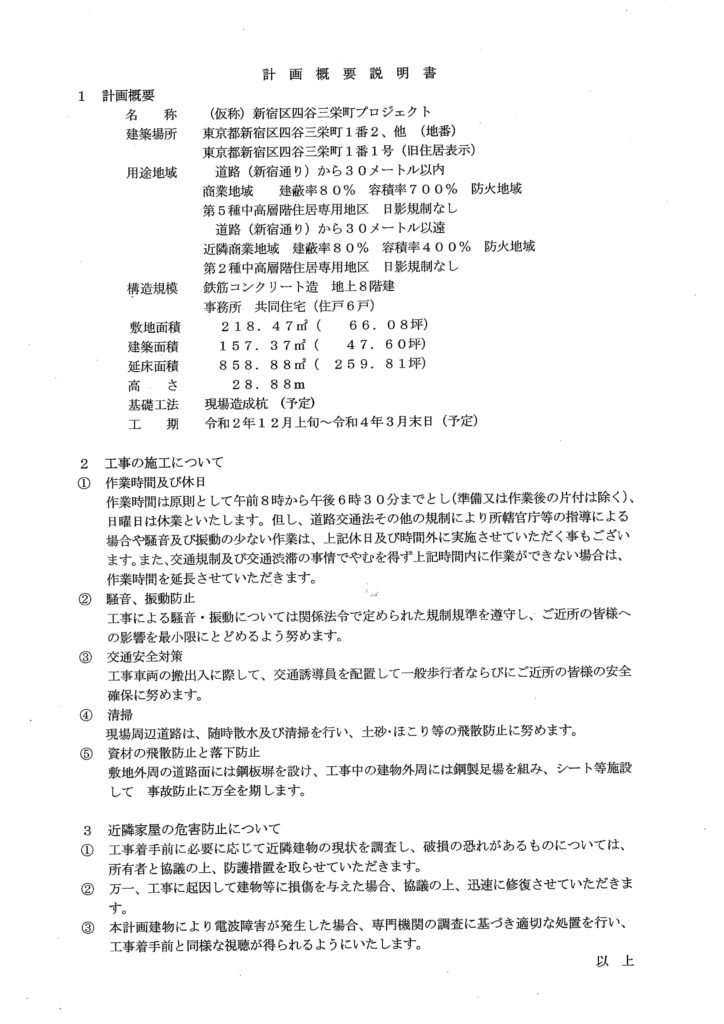
CSビルの建て替え計画です。
メールアドレスが公開されることはありません。 ※ が付いている欄は必須項目です
名前 ※
メール ※
サイト
次回のコメントで使用するためブラウザーに自分の名前、メールアドレス、サイトを保存する。
新しいコメントをメールで通知
新しい投稿をメールで受け取る
Δ